GARY ALLEN INDUSTRIES LLC
Call Us Now!
(732) 693-4699
Call Us Now! (732) 693-4699
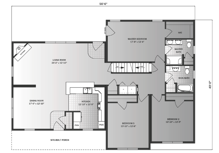
Clearfield II - Pleasant Valley
Phone: (732) 693-4699
Email: viviancasazza@gmail.com
Porch, Houzz